Skip to content
+372 513 38 19
Products search
Järelmaks
LHV järelmaks
Liisi järelmaks
75 sünnipäev
Tooted
Allahindlus
Aiamajad
Kodukontorid
Suvemajad
Saunad
Garaažid
Mängumajad
Populaarsed
Meist
Pildigalerii
Info
Privaatsuspoliitika
Müügitingimused
Kontakt
Ostukorv
Menu
Products search
Järelmaks
LHV järelmaks
Liisi järelmaks
75 sünnipäev
Tooted
Allahindlus
Aiamajad
Kodukontorid
Suvemajad
Saunad
Garaažid
Mängumajad
Populaarsed
Meist
Pildigalerii
Info
Privaatsuspoliitika
Müügitingimused
Kontakt
Ostukorv
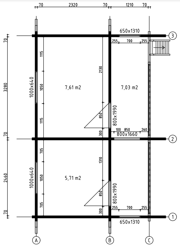
List 70 (43.7 m2+20.4 m2)
Loading...
€
24,812.00
€
19,778.00
44.7 m²
70 mm
795 x 615 cm
HIND SISALDAB:
Uksed ja aknad (puidust)
Naturaalne puitviimistlus (töötlemata puit)
Kokkupanemise juhend, mida on kerge jälgida
Tootekood:
7048321
Kategooriad:
Populaarsed
,
Suvemajad
Võta ühendust
Lisa korvi
TEHNILINE INFORMATSIOON